11088 Kelly Road $3,250,000
Rare development opportunity in the highly desirable South Fort Myers corridor. This 4.6± acre site offers a prime infill location on Kelly Road just minutes from Sanibel Island, Fort Myers Beach, and the major commercial corridors of Gladiolus Drive, Summerlin Road, and US-41.
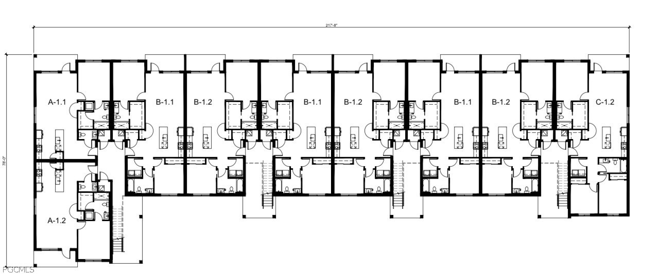
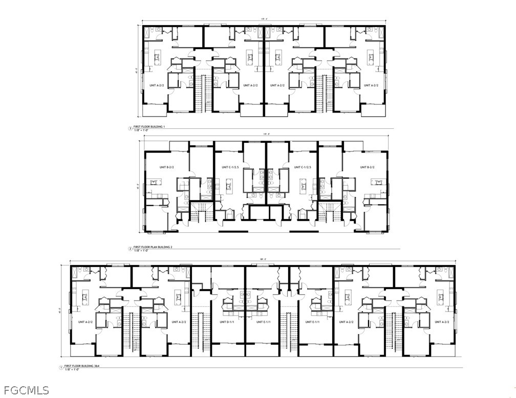
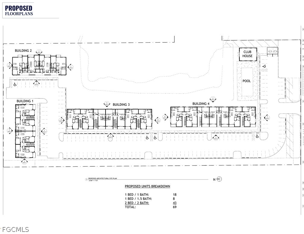
The property has already been rezoned for multifamily residential use and includes an approved Master Concept Plan for a 69-unit residential development, providing significant value and reducing entitlement risk for a future developer. The conceptual design envisions a low-rise multifamily community with multiple residential buildings, amenities, parking, and supporting infrastructure.
With rezoning completed and planning work already advanced, this site represents a strong opportunity for a builder or investor to continue the development process and bring a multifamily project to market in one of the most supply-constrained areas of Lee County.
The location benefits from close proximity to beaches, major employment centers, retail, healthcare, and year-round tourism demand. South Fort Myers continues to experience strong population growth and housing demand, particularly in the coastal corridor between Fort Myers and Sanibel.
Direct frontage on Kelly Road provides convenient access and visibility while still offering a quiet residential setting surrounded by established communities. Water and sewer infrastructure are available in the area, supporting future development potential.
Opportunities to acquire entitled or rezoned multifamily land of this size and location are increasingly limited in South Fort Myers. This property is well suited for multifamily rental, build-to-rent communities, or a boutique residential development designed to serve the strong demand generated by the nearby coastal destinations.
Developers and investors seeking a strategic site in a high-growth market are encouraged to inquire for additional planning information and documentation related to the approved concept plan.
Generelle Ausstattung
Landscape Amenities
Community Amenities
Accessibility Amenities
- Grundstücksgröße ha
- 4.62
Virtueller Rundgang
11088 Kelly Road
Fort Myers, Florida 33908
United States
Fort Myers, Florida 33908
United States
Subdivision: FORT MYERS
Landkreis: Lee
Kauf/Miete: For Sale
Objekt-ID: 2026011505
Immobilienart: Commercial
Eingetragen von North and Vrillaud Realty Group am Freitag, 06. März 2026 [For Sale]
- Grundstücksgröße ha
- 4.62
- Uferlage
- Ja
- Grundstücksgröße ha
- 4.62
Virtueller Rundgang
11088 Kelly Road
Fort Myers, Florida 33908
United States
Fort Myers, Florida 33908
United States
Subdivision: FORT MYERS
Landkreis: Lee
Kauf/Miete: For Sale
Objekt-ID: 2026011505
Immobilienart: Commercial
Eingetragen von North and Vrillaud Realty Group am Freitag, 06. März 2026 [For Sale]

USA:
E-Mail: