16541 San Carlos Boulevard $900,000
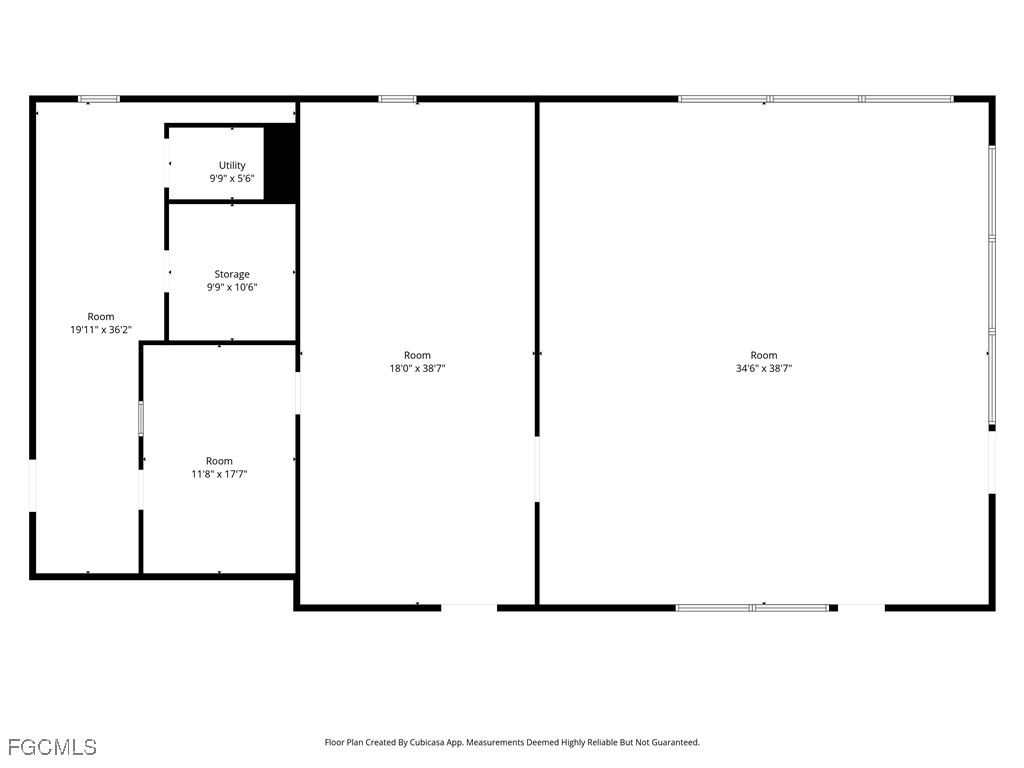
This ±3,000 SF concrete block commercial building is situated on a corner site on over half an acre of land, just south of the Super Target along the high-traffic San Carlos Boulevard corridor. The property offers excellent visibility, strong street frontage, easy access, and approximately 30 on-site parking spaces.
The building is a fully gutted shell, providing a true blank canvas ready for a new concept. The existing layout and footprint allow for efficient reconfiguration to accommodate a variety of commercial uses including restaurant, retail, office, or service-oriented businesses, subject to zoning and approvals.
With most demolition already completed, this property presents a strong value-add opportunity for an owner-user or investor seeking to design and build out a space tailored to their specific business needs in a highly desirable South Fort Myers location. Offered as-is.
Generelle Ausstattung
- Grundstücksgröße ha
- 0.38
- Baujahr
- 1977
Virtueller Rundgang
16541 San Carlos Boulevard
Fort Myers, Florida 33908
United States
Fort Myers, Florida 33908
United States
Landkreis: Lee
Kauf/Miete: For Sale
Objekt-ID: 2026004020
Immobilienart: Commercial
Eingetragen von ERA Right Choice Realty am Montag, 26. Januar 2026 [For Sale]
- Grundstücksgröße ha
- 0.38
- Baujahr
- 1977
- Grundstücksgröße ha
- 0.38
- Baujahr
- 1977
Virtueller Rundgang
16541 San Carlos Boulevard
Fort Myers, Florida 33908
United States
Fort Myers, Florida 33908
United States
Landkreis: Lee
Kauf/Miete: For Sale
Objekt-ID: 2026004020
Immobilienart: Commercial
Eingetragen von ERA Right Choice Realty am Montag, 26. Januar 2026 [For Sale]

USA:
E-Mail: