1044 Fish Crow Road $2,100,000
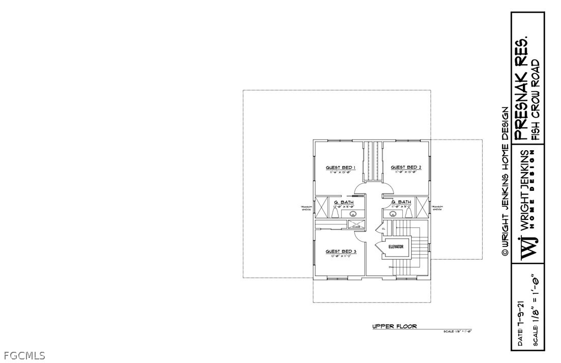
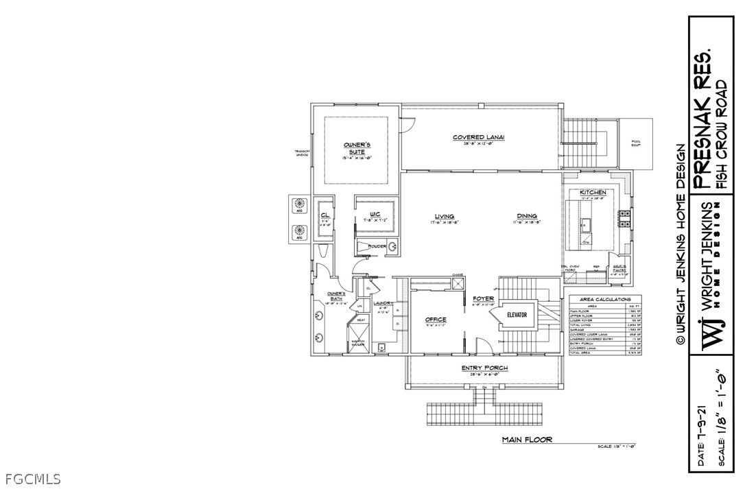
Welcome to 1044 Fish Crow Road — a newly built (2024), custom-designed coastal masterpiece on Sanibel Island. Crafted by renowned architect Wright Jenkins and constructed by the distinguished Benchmark General Contractor, this 4-bedroom + den, 3.5-bathroom pool home delivers exceptional quality, sophistication, and functionality in one of the island’s most desirable locations.
Located in the coveted Gulf Shores community, residents enjoy a short 5-minute walk to a private deeded beach access—leading to one of the most pristine and secluded stretches of shoreline anywhere in Florida.
Built to meet the latest building codes for maximum longevity and performance, this home offers concrete construction, pre-cast reinforced concrete slab flooring on the first level, and elevated structural engineering throughout. A private elevator services all three floors, providing effortless access throughout.
Inside, the home showcases a bright coastal-modern design, highlighted by soaring ceilings, engineered hardwood flooring, and an abundance of natural light. The expansive chef’s kitchen is equipped with luxury stainless appliances, custom cabinetry, and a large center island perfect for entertaining.
The spacious owner’s suite offers a peaceful retreat with a spa-inspired bathroom, walk-in closet, and serene views. Additional guest suites provide comfort and privacy for family and visitors.
Outdoor living shines with the oversized caged pool area, ideal for enjoying Sanibel’s breezes year-round. A whole-house generator adds peace of mind, along with impact-rated windows and doors throughout.
Every detail of this home reflects thoughtful design, premium craftsmanship, and timeless coastal living. A rare opportunity to own a newly built luxury residence just steps from the Gulf.
Sonderausstattung
Aussenausstattung
Landscape Amenities
Community Amenities
Appliance Amenities
Accessibility Amenities
- Zimmer
- 4
- Bäder
- 4.00
- Ft2
- 2,958
- Grundstücksgröße ha
- 0.33
- Baujahr
- 2024
- Heizung
- Central,Electric
- Dachausführung
- Metal
Virtueller Rundgang
1044 Fish Crow Road
Sanibel, Florida 33957
United States
Sanibel, Florida 33957
United States
Subdivision: GULF SHORES
Landkreis: Lee
Kauf/Miete: For Sale
Objekt-ID: 2025023960
Aktualisiert: Mittwoch, 29. April 2026 01:23
Immobilienart: Single Family
Eingetragen von Keller Williams Realty Fort Myers am Mittwoch, 10. Dezember 2025 [For Sale]
- Zimmer
- 4
- Bäder
- 4.00
- Ft2
- 2,958
- Grundstücksgröße ha
- 0.33
- Heizung
- Central,Electric
- Klimaanlage
- CentralAir,Electric
- Dachausführung
- Metal
- Baujahr
- 2024
- Garagengröße
- 3
- Uferlage
- Ja
- Zimmer
- 4
- Bäder
- 4.00
- Ft2
- 2,958
- Grundstücksgröße ha
- 0.33
- Baujahr
- 2024
- Heizung
- Central,Electric
- Dachausführung
- Metal
Virtueller Rundgang
1044 Fish Crow Road
Sanibel, Florida 33957
United States
Sanibel, Florida 33957
United States
Subdivision: GULF SHORES
Landkreis: Lee
Kauf/Miete: For Sale
Objekt-ID: 2025023960
Aktualisiert: Mittwoch, 29. April 2026 01:23
Immobilienart: Single Family
Eingetragen von Keller Williams Realty Fort Myers am Mittwoch, 10. Dezember 2025 [For Sale]

USA:
E-Mail: