3236 6th Avenue $549,900
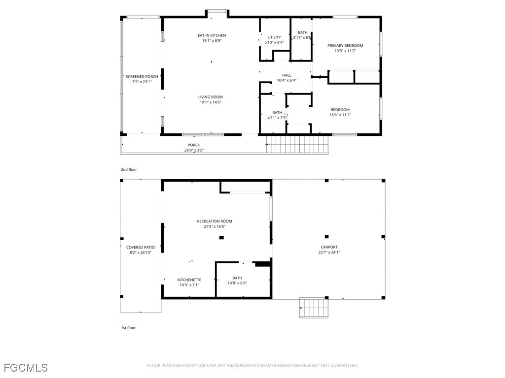
Welcome home to perfection in this beautifully remodeled two-story stilt residence in Saint James City. Ideally situated on a direct Gulf access canal, this property offers the ultimate boating lifestyle with an 8,000-pound boat lift and just a few minutes ride to the open waters of Pine Island Sound. Explore nearby islands, enjoy some of the best fishing in Florida, or cruise to Fort Myers Beach in only 20 minutes. The day trips from this location are endless and filled with water, fun, sunsets and beaches! Inside, the great room floor plan is designed for both comfort and entertaining. Natural light pours through expansive windows and sliders, highlighting the fluid open space, two bedrooms upstairs modern bathrooms, and a sprawling kitchen island that anchors the space. The home features two private living areas—upstairs and down—perfect for a blended family, guest accommodations, or even a home office setup. The downstairs living quarters include a gorgeous open space with two sliders, a living room, kitchen, and bathroom, offering endless flexibility for guests, extended family, or rental opportunities. Upstairs, the main living area at 13 feet elevation provides peace of mind and showcases bright, airy interiors with seamless access to a screened balcony, ideal for relaxing evenings overlooking the water. Recent updates include a durable metal roof, new windows downstairs, and hurricane-proof enhancements, ensuring both style and security. Outdoors, the expansive driveway and deep backyard offer plenty of room to add a pool, creating your own private oasis. Located in the laid-back island town of Saint James City, you’ll enjoy waterfront dining, local restaurants, and access to the 190-mile Great Calusa Blueway, a marked trail dedicated to kayaking and paddleboarding. A scenic bike path stretches all the way to Bokeelia, adding to the charm of this vibrant community. This home is a rare blend of nostalgic character and modern upgrades, with a fun and flexible floor plan and unbeatable Gulf access—making it the perfect retreat for full-time living or vacation enjoyment.
Generelle Ausstattung
Sonderausstattung
Aussenausstattung
Landscape Amenities
Community Amenities
Appliance Amenities
- Zimmer
- 2
- Bäder
- 3.00
- Ft2
- 1,456
- Grundstücksgröße ha
- 0.24
- Baujahr
- 1990
- Heizung
- Central,Electric
- Dachausführung
- Metal
Virtueller Rundgang
3236 6th Avenue
St James City, Florida 33956
United States
St James City, Florida 33956
United States
Subdivision: GULFHAVEN
Landkreis: Lee
Kauf/Miete: For Sale
Objekt-ID: 2025022489
Aktualisiert: Dienstag, 02. Dezember 2025 02:38
Immobilienart: Single Family
Eingetragen von Re/Max Sunshine am Montag, 01. Dezember 2025 [For Sale]
- Zimmer
- 2
- Bäder
- 3.00
- Ft2
- 1,456
- Grundstücksgröße ha
- 0.24
- Heizung
- Central,Electric
- Klimaanlage
- CentralAir,Electric
- Dachausführung
- Metal
- Baujahr
- 1990
- Uferlage
- Ja
- Zimmer
- 2
- Bäder
- 3.00
- Ft2
- 1,456
- Grundstücksgröße ha
- 0.24
- Baujahr
- 1990
- Heizung
- Central,Electric
- Dachausführung
- Metal
Virtueller Rundgang
3236 6th Avenue
St James City, Florida 33956
United States
St James City, Florida 33956
United States
Subdivision: GULFHAVEN
Landkreis: Lee
Kauf/Miete: For Sale
Objekt-ID: 2025022489
Aktualisiert: Dienstag, 02. Dezember 2025 02:38
Immobilienart: Single Family
Eingetragen von Re/Max Sunshine am Montag, 01. Dezember 2025 [For Sale]

USA:
E-Mail: