4033 26th Street $34,900
What truly sets this property apart is that it includes advanced planning and development work for a contemporary style home, saving the buyer months of paperwork, upfront costs, and administrative risk. The package includes:
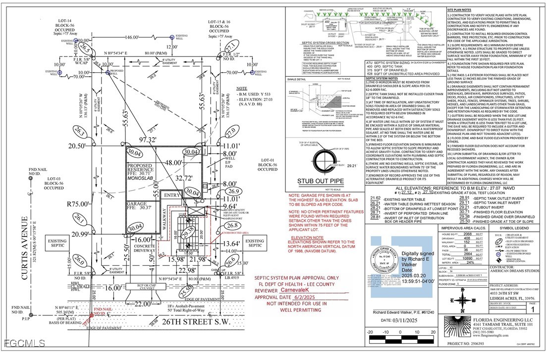
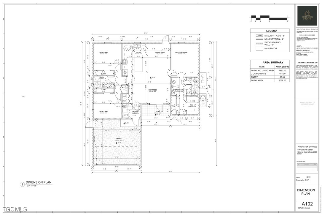
Complete architectural design for a contemporary 2,068 sq ft home with 3 BEDROOMS, 2 FULL BATHROOMS, and a 2-CAR GARAGE + Completed topographic survey, ready for immediate use + Approved floor plans, ready to proceed with final permitting + Approved SEPTIC SYSTEM design, including the AEROBIC TREATMENT UNIT, meeting all current county requirements. No trees to remove.
Compared to other raw lots in the area, this parcel offers substantial savings in technical studies, engineering, design work, and permitting time, which fully justifies its higher market value. This property is READY to build. Located in a rapidly growing area, 33976 is one of the most sought-after areas in Lehigh Acres.
Generelle Ausstattung
Landscape Amenities
Community Amenities
- Grundstücksgröße ha
- 0.25
Virtueller Rundgang
4033 26th Street
Lehigh Acres, Florida 33976
United States
Lehigh Acres, Florida 33976
United States
Subdivision: LEE COUNTY INDUSTRIAL PARK
Landkreis: Lee
Kauf/Miete: For Sale
Objekt-ID: 2025018090
Aktualisiert: Montag, 09. März 2026 03:50
Immobilienart: Vacant Land
Eingetragen von K & A Realty am Freitag, 31. Oktober 2025 [For Sale]
- Grundstücksgröße ha
- 0.25
- Grundstücksgröße ha
- 0.25
Virtueller Rundgang
4033 26th Street
Lehigh Acres, Florida 33976
United States
Lehigh Acres, Florida 33976
United States
Subdivision: LEE COUNTY INDUSTRIAL PARK
Landkreis: Lee
Kauf/Miete: For Sale
Objekt-ID: 2025018090
Aktualisiert: Montag, 09. März 2026 03:50
Immobilienart: Vacant Land
Eingetragen von K & A Realty am Freitag, 31. Oktober 2025 [For Sale]

USA:
E-Mail: