3731 SE 15th Place $19,500,000
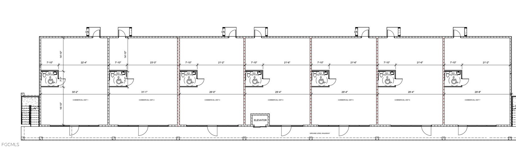
Located in the thriving South Cape Coral area. Entitled land with approved plans for a mixed-use development featuring workforce housing apartments and commercial space. This property is zoned C1 (confirm zoning for uses). The project includes 70 workforce housing apartments and 8,300 square feet of versatile commercial space. This property offers excellent access to public transportation, major highways, and local amenities, making it an attractive location for residents and commercial tenants. Deed-restricted under the Live Local Bill, requiring 40% of units to be rented to tenants earning less than 120% of the area median income (AMI). As of April 2024, Cape Coral's AMI is $88,800.
Generelle Ausstattung
- Grundstücksgröße ha
- 1.03
- Baujahr
- 2026
Virtueller Rundgang
3731 SE 15th Place
Cape Coral, Florida 33904
United States
Cape Coral, Florida 33904
United States
Landkreis: Lee
Kauf/Miete: For Sale
Objekt-ID: 2025015153
Aktualisiert: Dienstag, 10. März 2026 04:15
Immobilienart: Commercial
Eingetragen von Coast Life Properties LLC
- Grundstücksgröße ha
- 1.03
- Baujahr
- 2026
- Grundstücksgröße ha
- 1.03
- Baujahr
- 2026
Virtueller Rundgang
3731 SE 15th Place
Cape Coral, Florida 33904
United States
Cape Coral, Florida 33904
United States
Landkreis: Lee
Kauf/Miete: For Sale
Objekt-ID: 2025015153
Aktualisiert: Dienstag, 10. März 2026 04:15
Immobilienart: Commercial
Eingetragen von Coast Life Properties LLC

USA:
E-Mail: