430 SW 47th Terrace $13,500,000
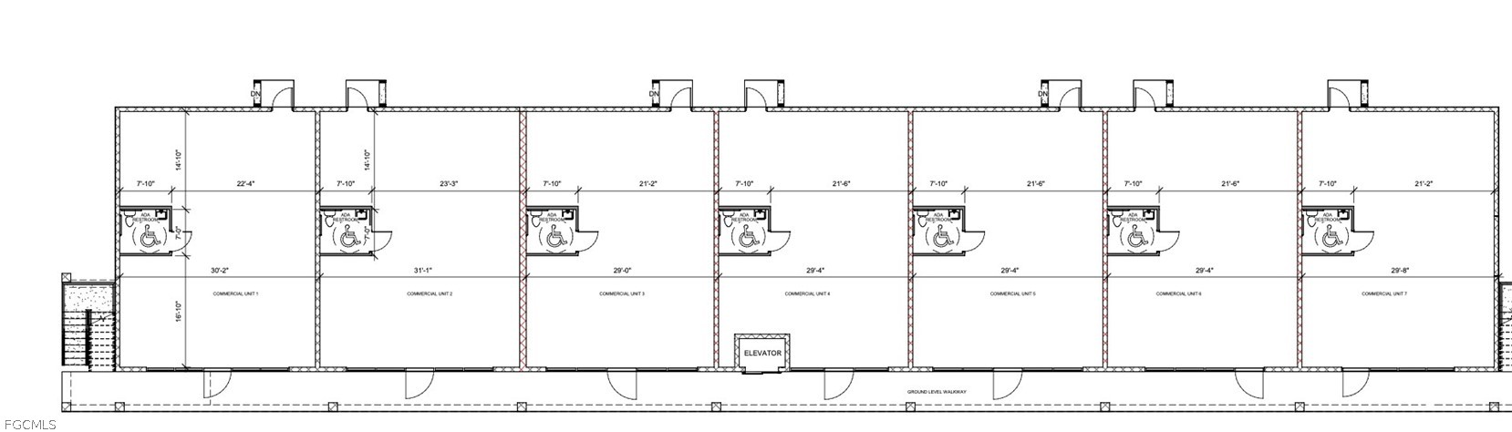
Prime development opportunity in South Cape Coral! This entitled land parcel is offered with approved plans for a mixed-use project featuring 39 workforce housing apartments and 8300 sq ft of commercial space. The site is zoned CP (confirm with zoning for intended use), offering an ideal live-work scenario for residents. Situated in a rapidly growing area, the property provides excellent access to public transportation, major roadways, schools, parks, dining options, and healthcare facilities. High rental demand and flexible use make this a standout investment opportunity, offering stable income potential through long-term residential and commercial leases. The property is deed-restricted under Florida’s Live Local Bill, requiring 40% of units to be leased to individuals earning no more than 120% of the Area Median Income (AMI), which is $88,800 as of April 2024. Whether you're a developer or investor seeking to contribute to Cape Coral’s workforce housing solutions while capturing long-term value, this property is ready for action.
Generelle Ausstattung
- Grundstücksgröße ha
- 0.69
- Baujahr
- 2026
Virtueller Rundgang
430 SW 47th Terrace
Cape Coral, Florida 33914
United States
Cape Coral, Florida 33914
United States
Landkreis: Lee
Kauf/Miete: For Sale
Objekt-ID: 2025015434
Aktualisiert: Dienstag, 10. März 2026 03:15
Immobilienart: Commercial
Eingetragen von Coast Life Properties LLC
- Grundstücksgröße ha
- 0.69
- Baujahr
- 2026
- Grundstücksgröße ha
- 0.69
- Baujahr
- 2026
Virtueller Rundgang
430 SW 47th Terrace
Cape Coral, Florida 33914
United States
Cape Coral, Florida 33914
United States
Landkreis: Lee
Kauf/Miete: For Sale
Objekt-ID: 2025015434
Aktualisiert: Dienstag, 10. März 2026 03:15
Immobilienart: Commercial
Eingetragen von Coast Life Properties LLC

USA:
E-Mail: